Haus A12

Stuttgart 

1994


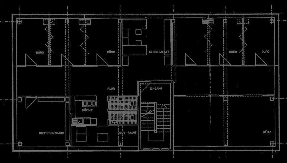
Die Produktionsfläche einer ehemaligen Druckerei wurde bis auf den Rohbau von Einbauten befreit und für die Belange einer Unternehmensberatung ausgebaut.


Um der Anforderung nach flexiblen Raumgrößen gerecht zu werden, wurden mit der Fa. Nüsing mobile Trennwände entwickelt, die trotz ihrer Flexibilität einen ausreichenden Schallschutz bieten.

Drei Bürozellen, als Minimalraum konzipiert, können jeweils in wenigen Minuten zu einem Großraum zusammengeschlossen werden.


Alle Einbauten wurden durch "gläserne Fugen" vom Bestand abgehoben, die tragende Grundkonstruktion aus rauh geschaltem Stahlbeton in der Oberfläche belassen.


Bauherr: DATAX AG

Leistungsphasen: 1 bis 8